;
Galatea
Galatea
Galatea
Galatea
Galatea
Galatea
Galatea
Galatea
Galatea
Galatea
Galatea
Galatea
Galatea
Galatea
Galatea
Galatea

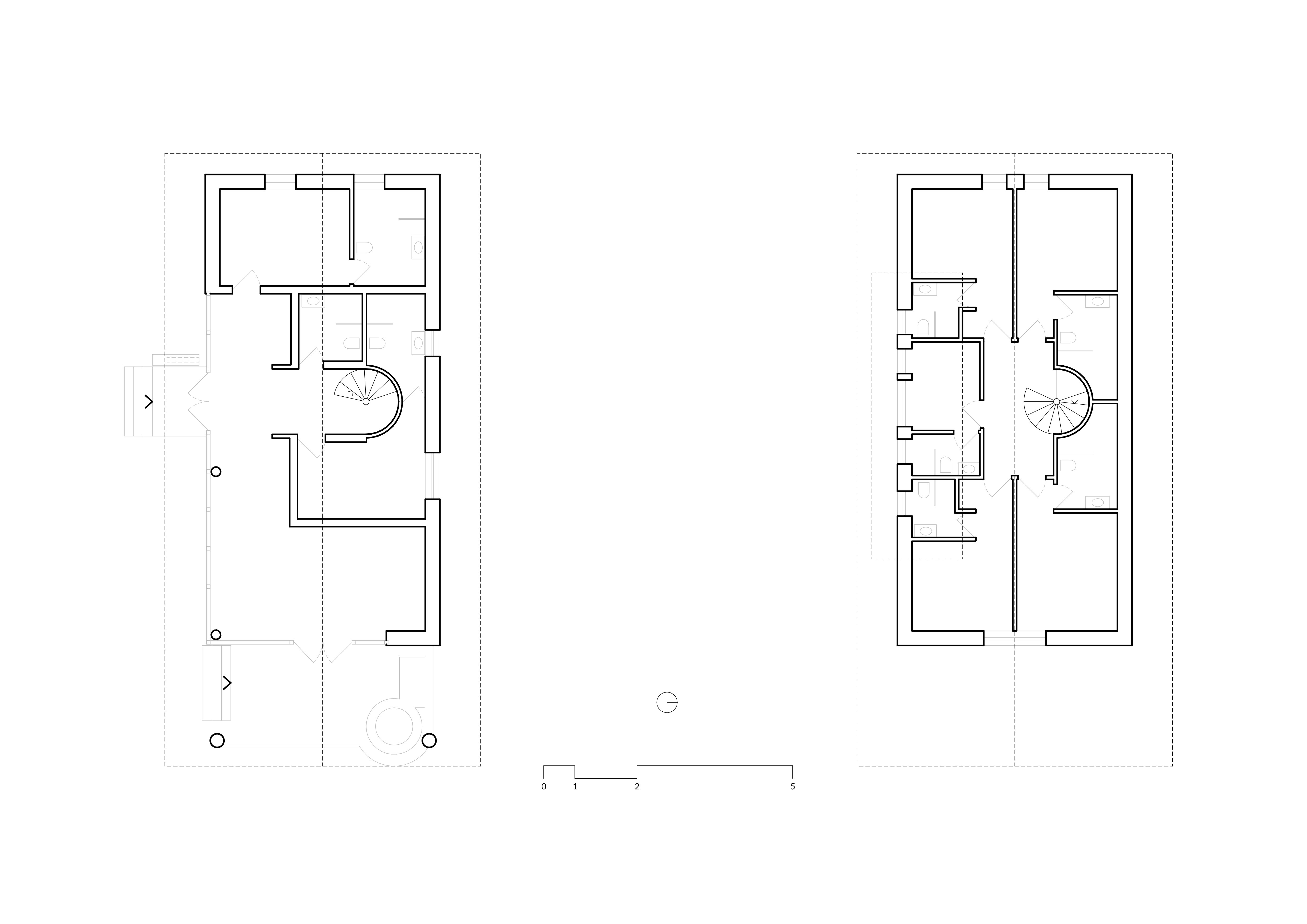
Black Swan | Izvoru Mureșului | Romania

  • Client :

    Private

  • Architect :

    Antal Zoltán

  • Completed :

    2020-10-01

;